Česky
English
Domů
1.NP Komerční plochy
2.NP Administrativní prostory
3.NP Byty
4.NP Byty - mezonet
Krátkodobý pronájem
Garáže
Kontakty
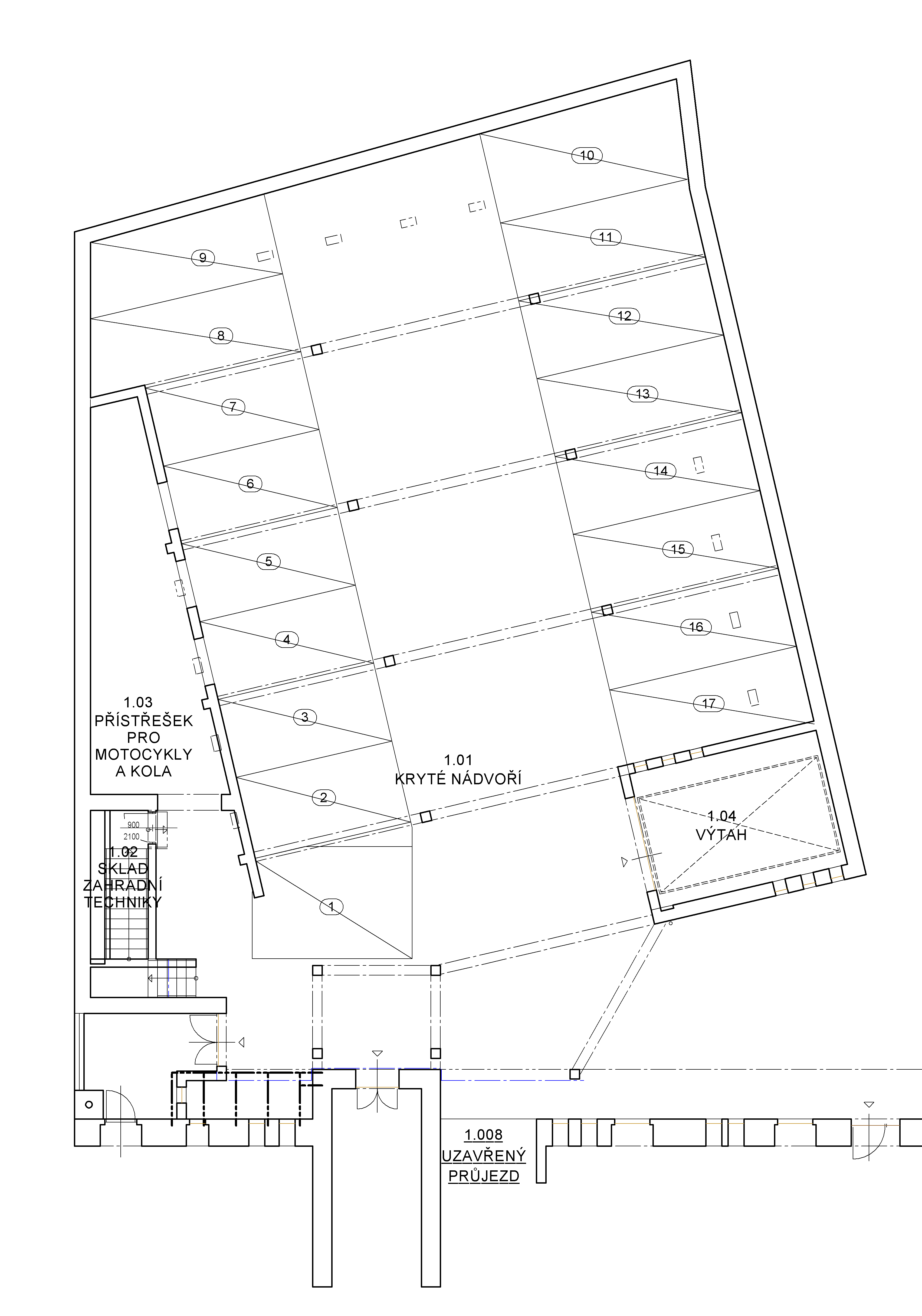
Parkování v garážovém domě pro 31 vozidel
Garážové stání 1.NP
Stav
Garážové stání 2.NP
Stav
1
18
2
19
3
20
4
21
5
22
6
23
7
24
8
25
9
26
10
27
11
28
12
29
13
30
14
31
15
16
17
K dispozici
Obsazeno
Virtuální prohlídka:
Klikněte na obrázek pro větší velikost
Klikněte na obrázek pro větší velikost